L'anniversaire de l'Empereur le 23 février est un jour très attendu par les Japonais. Et pour cause car il s'agit de la fête nationale. Le jour est donc férié et est l'une des deux seules occasion d'entrer dans les jardins du palais de sa Majesté.
La maison japonaise par Sakai Architects à Amami Ōshima
Bienvenue sur Amami Ōshima, au cœur de l'archipel Nansei. Situé à mi-chemin entre les côtes de Kyushu et d'Okinawa, ce joyau subtropical est souvent surnommé les "Galápagos de l'Orient" pour sa biodiversité exceptionnelle.
Ici, le temps semble suspendu. Classée au patrimoine mondial naturel de l'UNESCO depuis 2021, l'île déploie un décor brut où la nature règne en maître. Entre forêts primaires d'un vert abyssal, mangroves denses et climat rythmé par le souffle de l'océan, c'est au cœur de cet écrin sauvage — à des années-lumière de la frénésie des mégalopoles du Honshū — que le studio Sakai Architects a relevé un défi de taille
Dans ce contexte insulaire isolé, où les éléments dictent leur loi, a été imaginée l'« Off-Grid House » (Maison Hors Réseau). Cette résidence familiale de 120m² en bois aux lignes épurées offre une réponse architecturale à l'environnement : totalement autonome et déconnectée du réseau électrique national, elle est pensée comme un refuge résilient face aux typhons et à la chaleur.
Le retour au "Buntō" : Une géométrie éclatée
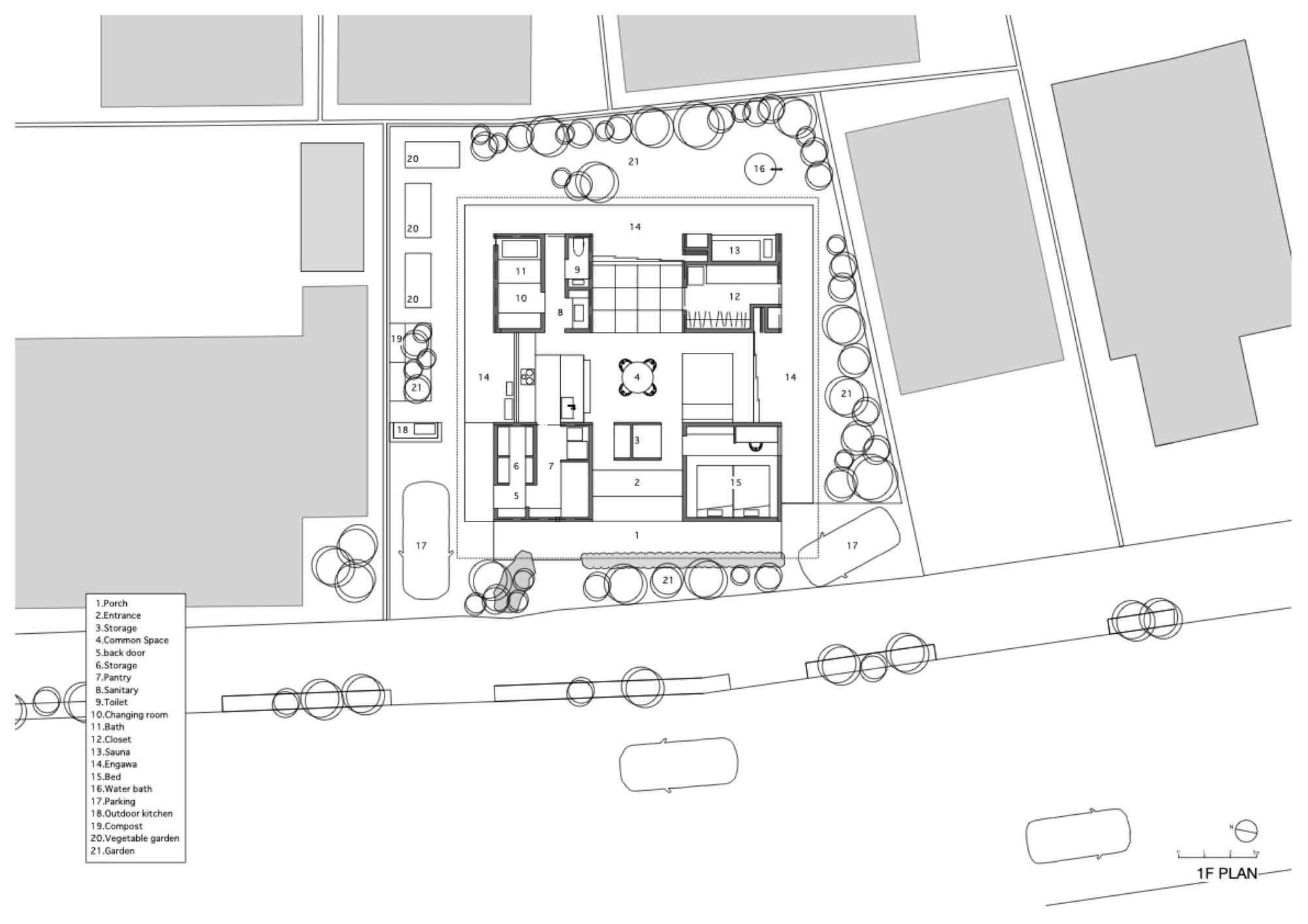
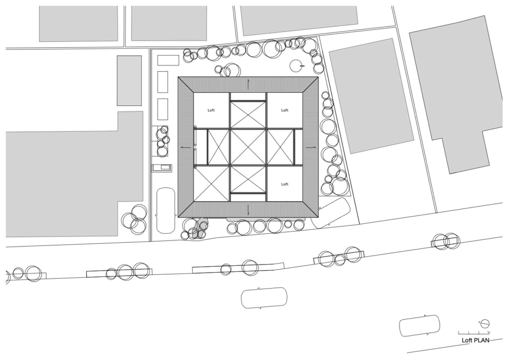
Loin de la maison monobloc occidentale typique, le plan de la résidence s'inspire de la tradition locale du buntō (分棟, style multi-volumes). L'habitation est fragmentée en cinq structures interconnectées, chacune dédiée à une fonction précise : le bain, le sommeil, le stockage ou la vie commune.
Cette disposition géométrique n'est pas un hasard. Elle permet de créer des zones intermédiaires — mi-closes, mi-ouvertes — qui servent de lieux de rassemblement. Ces espaces de transition favorisent une ventilation naturelle constante, essentielle sous ces latitudes humides, et effacent les frontières entre l'intérieur douillet et la nature exubérante d'Amami.



Sagesse vernaculaire et adaptation climatique
Pour concevoir cette maison, Sakai Architects a mené une recherche approfondie sur les méthodes de construction locales. Le design des toitures réinterprète le style irimoya (入母屋, toit à pignon et croupe. C'est l'un des styles de toiture les plus classiques et prestigieux de l'architecture traditionnelle japonaise) ainsi que les formes en tôle ondulée typiques de la région, en y ajoutant une isolation multicouche et des cavités de ventilation pour une meilleure régulation thermique.
Plus frappant encore, la structure surélevée fait écho aux takakura (高倉), les greniers traditionnels des îles Amami montés sur pilotis pour protéger les récoltes de l'humidité et des rongeurs. Tandis que cette élévation favorise une ventilation transversale optimale, de profonds avant-toits viennent atténuer l'exposition directe au soleil et aux pluies tropicales.



Autosuffisance : Le cercle vertueux
L'aspect le plus impressionnant de la maison réside dans son indépendance totale vis-à-vis des infrastructures publiques. Après avoir étudié le potentiel éolien, hydraulique et géothermique, c'est finalement l'énergie solaire qui a été retenue comme la plus viable, malgré un ensoleillement régional parfois capricieux.
La maison fonctionne comme un écosystème clos :
- Énergie : Alimentation par panneaux photovoltaïques.
- Chauffage : Un sauna au feu de bois utilise les chutes de bois et le bois recyclé issu de la construction comme combustible.
- Déchets : Les déchets organiques sont compostés et réutilisés dans le potager attenant, bouclant ainsi la boucle alimentaire.


L'esprit du "Yui"
Au-delà de la technique, Sakai Architects a voulu insuffler à la maison l'âme d'Amami, souvent surnommée "l'île des liens". L'organisation spatiale flexible permet d'accueillir aussi bien la vie de famille quotidienne que les grands rassemblements communautaires, reflétant la tradition du yui (結, entraide / liens collectifs (ou parfois écrit 結い), ce terme désigne l'esprit de coopération et le système d'échange de main-d'œuvre rural).
Avec l'Off-Grid House, l'architecture devient un outil de continuité culturelle et environnementale, prouvant qu'il est possible de vivre confortablement "hors réseau" sans sacrifier ni le design, ni le lien social.






















Participez
Ajoutez-en un pour lancer la conversation.
Connexion
Inscription