Régent et politicien de la Cour impériale du Japon. Il joua un rôle majeur dans l'implantation du bouddhisme au Japon.
La maison japonaise par Airhouse à Okazaki
 
		Une immense corniche blanche flottante qui vient fendre un sobre volume noir. C'est la réponse architecturale, aussi radicale qu'épurée, de l'agence Airhouse à un défi lancé par une famille d'Okazaki, dans la préfecture d'Aichi, pour leur maison bi-générationnelle.

L'enrichissement par la corniche
Le concept, baptisé "Enrichment through eaves" (L'enrichissement par la corniche), est né d'une pure nécessité pratique. Les propriétaires souhaitaient avant tout un espace de stationnement couvert et facile d'accès, un véritable défi compte tenu de l'étroitesse de la rue qui compliquait les manœuvres. Pour répondre à cette exigence majeure, Airhouse a pris le parti de reculer le bâtiment au maximum sur la parcelle afin d'ériger cette large corniche sans aucun pilier.
Cette structure en porte-à-faux crée un volume couvert généreux pour quatre véhicules. Le secret réside dans l'absence totale de piliers : l'espace au sol est entièrement dégagé. Cela permet non seulement aux résidents de manœuvrer et de se garer en toute sérénité, mais cela fluidifie aussi la circulation dans la rue, en facilitant le croisement des voitures et contribuant à la tranquillité du quartier..

Un espace social entre public et privé
Mais Airhouse a donné à cette corniche une vocation bien plus large qu'un simple carport de luxe ; c'est un véritable espace de transition et de lien social. Elle protège d'abord l'accès à la maison, puis se transforme en lieu de rencontre semi-public.
Tel un engawa (véranda traditionnelle japonaise) moderne, ce volume sous abri favorise les discussions spontanées entre les résidents et leurs voisins. La structure s'étend enfin pour coiffer le jardin intérieur des parents, dessinant un extérieur confortable et protégé, propice au partage, où le vent et la lumière circulent librement.
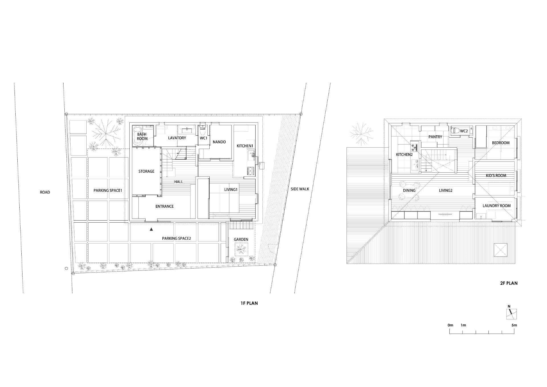
Ce type de résidence bi-générationnelle est une solution architecturale très répandue au Japon, conçue pour équilibrer intimité et soutien mutuel. L'aménagement place quasi systématiquement la génération plus âgée au rez-de-chaussée. C'est un choix dicté par l'accessibilité : l'absence d'escaliers et l'accès direct à l'entrée et au jardin facilitent leur mobilité et leur quotidien. La jeune famille et ses enfants occupent l'étage supérieur, où ils bénéficient de leur propre espace de vie privé, souvent plus vaste pour les chambres d'enfants, tout en restant à proximité immédiate pour partager les repas ou assurer l'entraide quotidienne.



Sérénité intérieure et puits de lumière
Si l'extérieur joue sur un contraste puissant entre le blanc et le noir, l'intérieur répond au souhait du client d'un environnement serein et apaisant.
Située dans un quartier résidentiel dense, la maison préserve son intimité tout en recherchant la lumière. Les architectes ont utilisé les cages d'escalier comme des "puits de lumière". Cela permet non seulement d'inonder les pièces d'une clarté douce, mais aussi de maintenir un lien visuel subtil entre les deux familles, qui peuvent sentir la présence les unes des autres.
La palette intérieure est dominée par des tons beiges chaleureux, magnifiés par l'utilisation de bois massif de tamogami (Tamogami" (タモガミ) ou plus couramment Tamo (タモ) est le nom japonais du Frêne du Japon). Son utilisation, combinée aux cloisons shoji traditionnelles, sert à ancrer l'intérieur moderne dans une esthétique japonaise raffinée.


|  |  | 

|  |  | 








 
		
Participez
Ajoutez-en un pour lancer la conversation.
Connexion
Inscription