Doraemon est un chat-robot né le 3 septembre 2112 qui voyage dans le temps pour aider un garçon, Nobita, avec des gadgets sortis de sa poche quadridimensionnelle. Très amusant, il déteste les souris et adore les dorayaki ( crêpe sucrée).
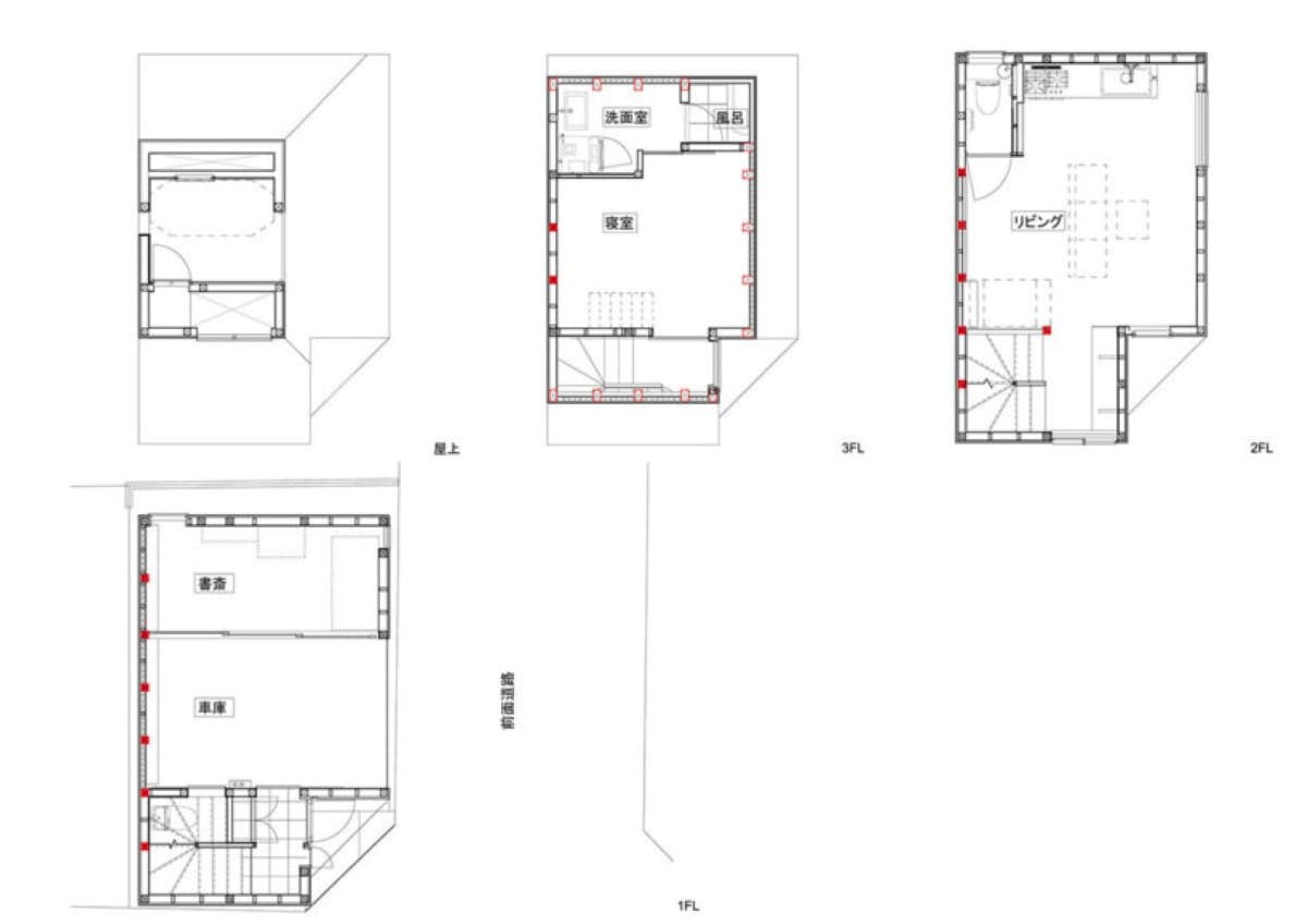
La maison japonaise par KOMINORU à Nakano
Vivre à Tokyo, c’est maîtriser l’art de composer avec le manque d’espace. Mais que faire quand on dispose d’un terrain de seulement 9 tsubo (30 m²), soit la taille d’un petit studio ? On fait appel à l'agence d'architecture KOMINORU, qui y a érigé une incroyable maison en bois de trois étages. Un bijou d'ingéniosité niché en plein cœur de l’arrondissement de Nakano, qui prouve qu'on peut vivre grand, même dans un espace minuscule.

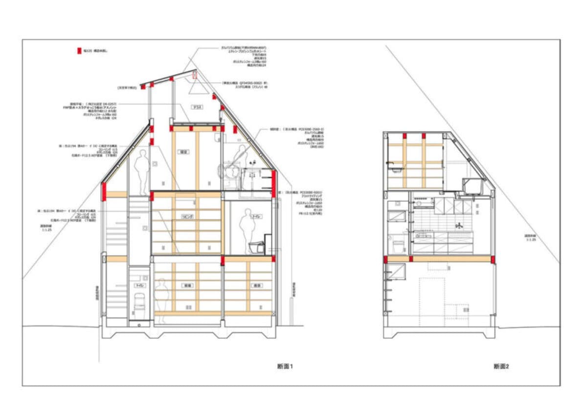
Construire en bois dans une métropole relève du défi, surtout dans une « zone quasi-résistante au feu » (jun-taika chiiki). Normalement, la loi impose d’encapsuler la structure porteuse dans des matériaux ignifuges comme des plaques de plâtre. Résultat ? Adieu, le charme chaleureux du bois apparent !
Détourner les règles du jeu avec style
Mais c'était sans compter sur l'astuce des architectes. En s'appuyant sur une réglementation plus récente (datant de 2019), ils ont pu contourner cette contrainte. La solution : utiliser des poutres et des poteaux en bois légèrement plus épais (120 mm) qui assurent eux-mêmes la protection incendie requise. Grâce à cette ingéniosité réglementaire, la magnifique ossature en bois reste visible à l'intérieur. Les plafonds semblent plus hauts, la sensation d'espace est bluffante, et la contrainte se transforme en un atout esthétique majeur.

La "zone quasi-résistante au feu" est un zonage urbanistique japonais qui impose des exigences spécifiques de protection contre l'incendie pour les constructions. Oui, ce terme existe, mais c'est une traduction littérale française d'un concept spécifiquement japonais.
Explication: Le terme original en japonais est 準耐火地域 (jun-taika chiiki). 地域 (chiiki) signifie "zone" ou "district". 準耐火 (jun-taika) se traduit littéralement par "quasi-résistant au feu" ou "semi-ignifugé".
Il s'agit d'une désignation officielle dans le droit de l'urbanisme japonais pour des zones urbaines denses où le risque de propagation des incendies est élevé. Les bâtiments construits dans ces zones doivent respecter des normes de construction plus strictes que la normale, mais moins sévères que celles des "zones résistantes au feu" (taika chiiki), qui sont les plus strictes.
![]() | ![]() |
Un rooftop gagné sur le ciel de Tokyo
À Tokyo, on ne vole pas la lumière de ses voisins. Là aussi, des règles d'urbanisme très strictes dictent la forme des bâtiments pour préserver l'ensoleillement des parcelles voisines. Pour beaucoup, c'est un casse-tête. Pour KOMINORU, ce fut une opportunité.
Côté sud, grâce au calcul savant du « taux de ciel » (tenkū-ritsu, 天空率) – un ratio qui mesure la portion de ciel visible depuis un point donné dans la rue –, l'équipe a pu "sculpter" le volume du bâtiment. Cette optimisation leur a permis de glisser un petit rooftop au sommet. Le luxe absolu sur une parcelle si étroite !
Côté nord, une autre règle impose une pente au bâtiment pour ne pas faire d'ombre. Loin d'être un handicap, cette contrainte a dessiné l'écrin parfait pour une salle de bain ultra-optimisée. La baignoire se niche dans l'angle le plus bas, et les rangements épousent la ligne du toit. Pas un seul centimètre n'est perdu.
Un îlot de verdure suspendu et une ventilation poétique
Et le jardin, dans tout ça ? Pas la moindre place au rez-de-chaussée. Qu'à cela ne tienne, les architectes l'ont simplement fait grimper au deuxième étage. Une jardinière, installée juste au-dessus de la corniche, offre aux habitants une touche de vert à hauteur des yeux. C'est une bouffée de nature qui change tout et fait presque oublier la densité urbaine environnante.
Cette maison respire, littéralement. Une fenêtre de toit, agissant comme une « tour à vent », tire parti de la convection naturelle : l'air chaud monte et s'échappe, aspirant l'air plus frais depuis les niveaux inférieurs. Ce système de ventilation passive rafraîchit les intérieurs sans climatisation, de manière à la fois poétique et écologique.

La "Petite maison sur un terrain d'angle" (Small House on a Corner Lot), comme l'appelle ses concepteurs, est bien plus qu'une simple habitation de 60 m² habitables. C'est un manifeste. La preuve éclatante que les contraintes les plus rudes peuvent devenir les moteurs d'une créativité sans bornes. Elle nous livre une leçon d'architecture typiquement japonaise, où l'ingéniosité technique, la maîtrise des lois et l'amour des matériaux transforment chaque fragment de ville en un lieu de vie chaleureux et sans compromis.
![]() | ![]() |

![]() | ![]() |

![]() | ![]() |











Participez
Ajoutez-en un pour lancer la conversation.
Connexion
Inscription